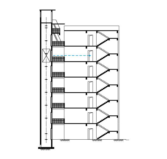
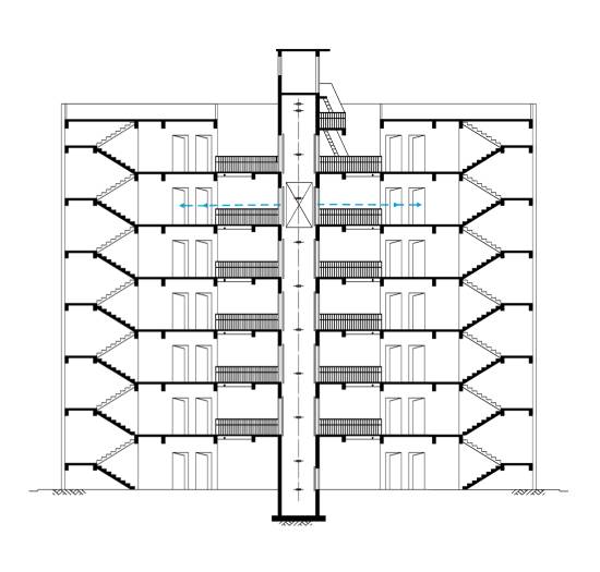
平层入户是指电梯出入口位于楼梯平面,实现乘坐电梯直达指定楼层。直平台式(平层入户)可从住宅楼正面实现入户,要求建筑物的正面空间足够宽广,加装电梯后进出楼梯的距离满足相关安全走火通道等要求。
-
侧视图
-
俯视图
-
侧视图(透视)
